社会福祉法人 今治福祉施設協会
施設のご案内
養護老人ホームいこいの里しみず
施設について
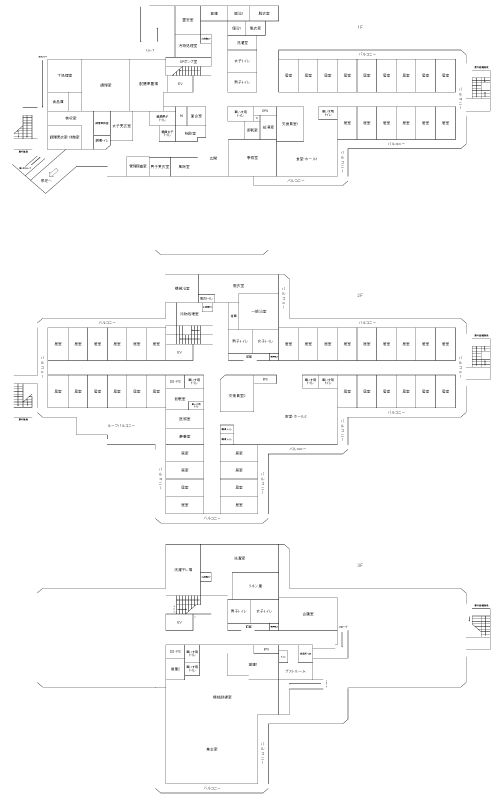
施設平面図
施設平面図のPDFデータはこちら (12.MB) >>
施設概要
養護老人ホームいこいの里しみず 施設概要
敷地面積
9,033.49m²
建築面積
1,035.61m²
延床面積
2,585.51m²
建築構造
鉄筋コンクリート造3階建
総工費
916,474千円
居室数
個室 50室
次へ
先頭へ
前へ
戻る
MENU
施設概要
運営方針
利用案内
施設について
アクセス
行事
活動
ホーム
福祉施設協会とは
施設のご案内
募集
お知らせ